CMF海水论坛

 找回密码
 注册
查看: 24832|回复: 41

【原创】120*50*50*12五面超白缸改造海缸教程

  [复制链接]
发表于 2017-11-4 09:15:33 | 显示全部楼层 |阅读模式 来自: 中国广东佛山
本帖最后由 mib1314 于 2019-12-15 15:44 编辑

【强调一下:大神们不要喷我,我是一位从草缸过来的海水新手,多多包涵】
这个帖子本来不想发的,不过有好几个人问我过怎么改,所以就发一下,之前有没大神发过我不清楚。如有雷同,实属巧合
DIY能力强的您,我们正式开始正文:
首先自我介绍,我是一名广东顺德人,从2014年开始接触水族,玩了3年淡水造景以及饲养过一些大型观赏鱼,然而海水的美丽珊瑚以及鱼儿让我动摇了对草缸的迷恋。现在淡水设备能撤的都已经二手转卖。专心投入海水行列。
由于当时新买了一个120*50*50的5面超白缸不久,心想既然想下海,又不想从新再买海水鱼缸和底柜,就想起把超白缸改成海水缸的念头,于是就从网上搜索大量改缸资料。拉起袖子干起来。
由于本人不懂编辑图片,图片一律在文字最下方顺序显示。
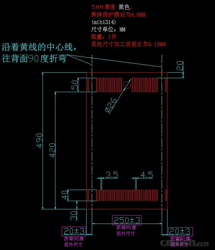
我的海缸改造。是中间放溢流板的。CAD图出水孔设计是26(上水25),溢流板是某宝定制,但考虑上水泵流量衰减的问题,后来由26改成33(上水32)。
首先要做的就是玻璃开孔。这工序极其简单而又讲究,{温馨提示:动手能力不强或者没工具的渔友,建议找玻璃店师傅上门钻孔,省力更省心。}
这里还是提一下需要什么工具吧,分别是:手持电钻一台(锂电和直流电均可),玻璃开孔器一个(最好以背包上下水的尺寸订购,一物多用嘛),水管一条或者喷壶一个。
工具齐全以后就可以开始动工了,首先是选玻璃面开孔,挑选一面有瑕疵或者有擦不掉污迹的玻璃面进行开孔(完美的一面肯定是要用来观赏的啊),假如都是完美的,恭喜你,任性自由发挥。量好你要开孔的位置,做好定位,装上玻璃开孔器,接水管开启并且让水流能够经过开孔玻璃的位置,对准定位开始钻孔(开孔器稍微倾斜,平面接触玻璃面,很容易由于应力滑开),手必须要稳,当玻璃面上有出现玻璃槽,就用玻璃槽作为定位,开始慢慢摇动电钻(怎么摇???幻想一下圆圈在地上旋转接近停止倒地时的样子。。。还不知道?度娘搜视频或者自己实验一下),当圆形玻璃槽出现以后,就可以垂直往下钻。刚开始慢点,钻深了可以加快速度。过程中的力度由轻到重,自己掌握。(这里不建议开直角边,容易爆裂。加水钻孔也是防止干钻导致玻璃面爆裂),想要顶部整块玻璃去掉或者贯通式椭圆孔,可以多钻几个孔打穿玻璃。再用砂纸打磨边位就行。这里不作介绍了。方法一样,只是工序繁琐。完成后往下一步。
其次就是要粘溢流板、背包以及底缸了,先说背包吧,宽度按照你的溢流板宽度减去1CM为最好(比如溢流板折弯后是25CM宽度,背包宽做24CM),这样的做法原因在于正面看过去,溢流板完全遮挡背包,不会外露。而且背包底部开孔的位置可以尽量拉宽,不会出现钻孔失误导致钻爆的尴尬场面。我的三孔是左右下水40,中间上水32。。。。背包高度取主缸的高度的三分之二。这样的做法是考虑需要调节下水量降低噪音而构思出来的(大神勿喷)。。。。底缸的方案。。。。额。。。。其实也没方案,按照自己实际设计情况做。没什么好介绍了。简单来说就是普通的粘玻璃缸。我底缸是100*40*40*8浮法玻璃。三格长方排列(下水+蛋分,藻缸,上水),土豪建议用亚克力。还是那句话:省力更省心。溢流板的出水孔要对准主缸出水孔粘缸即可。。。。。以上方案只适合左右下水,中间上水设计。。。。。粘背包以及溢流板把主缸放倒,开孔面朝上,量好尺寸后,用木头或者PVC管等软质材料把溢流板粘上并且撑住固定(硬质材料会刮花玻璃,超白玻璃属于软性玻璃),背包粘合位置在溢流板两边各0.5CM位置即可,尽量居中,做好定位以后打上标记,打胶粘合,背包受引力作用,不用任何固定,用手适当压紧刮胶后自然风干就好。友情提示:24小时内不要挪动,48小时内可放平。时间长短视干结速度而定。。。。。个人建议,非专业粘缸高手,不要用瓦克的胶水,至于原因嘛,就是干得快,懂道理了吧???有人问,干得快不是更好吗??是啊,但你觉得刮胶的速度够快吗?容错率高吗?完成后往下一步
再次就是接管,我用的是xx三厘,虽然价格较高,但质量很好,至于取决什么,看个人喜好,特别是钱包。。。。。我喜欢红白搭配所以选三厘,一个字,骚。。。。主要部件:上下水接头,连接管,弯头,由令,下水调节阀,上水防溢阀,宝塔,胶水。布局请看下面图片。
最后就是改底柜,为何要改底柜,因为我之前是草缸用的,门是用铰链式,柜子宽50CM。但底缸宽40CM,铰链门扣加了木方做门扣固定,所以内部空间小于40CM。需要改成磁吸式才能放进底缸,这个可忽略了。。。。。
收官美化,背部贴黑不透膜(某宝直接搜),完全遮挡缸背情况,底柜里设置感应LED灯带,开门即亮(某宝直接搜)。
以下附图。全过程都是自己改,自己拍照,有很多过程都没拍到,可加微信交流:mib1314
草缸改海缸的DIY全过程。不喜勿喷。纯熟自己构思的。各位手下留情。。。。。
1.jpg
2.jpg
3.jpg
4.jpg
5.jpg
6.jpg
7.jpg
8.jpg
9.jpg
10.jpg
11.jpg
12.jpg
13.jpg
14.jpg
15.jpg
16.jpg
溢流板CAD图.jpg

评分

参与人数 1威望 +80 金币 +80 收起 理由
cmfish + 80 + 80 神马都是浮云

查看全部评分

发表于 2017-11-4 11:10:02 | 显示全部楼层 来自: 中国广东东莞
我都系顺德,链接泵与红色上水管那个白色软管在哪里买?用多大的
回复 支持 2 反对 0

使用道具 举报

 楼主| 发表于 2018-11-22 14:39:17 | 显示全部楼层 来自: 中国广东佛山
妹控空 发表于 2018-11-21 21:52
楼主求vx,想要请教下改造

mib1314
回复 支持 1 反对 0

使用道具 举报

发表于 2017-11-5 14:42:47 | 显示全部楼层 来自: 中国山东泰安
牛啊,我都想自己改,我看很多老外都是自己改背包的,或者亚克力溢流,但是国内肯自己动手的,还是少数。。。
回复 支持 1 反对 0

使用道具 举报

发表于 2017-11-4 23:18:48 来自手机 | 显示全部楼层 来自: 中国重庆
求楼主买的开门即亮的图片细节图,购买地址,使用评价。这个很适合用这个。楼主先见之明
回复 支持 1 反对 0

使用道具 举报

发表于 2017-11-4 13:59:52 | 显示全部楼层 来自: 中国北京
顶楼主,讲解的非常详细中肯!楼主人很好,我之前就咨询过楼主,楼主很有耐心的指导每一个细节,还提供了CAD图,相信这篇文章一定会帮助到很多有类似需求的淡水转海水的海友!谢谢楼主
回复 支持 1 反对 0

使用道具 举报

 楼主| 发表于 2017-11-4 13:35:16 | 显示全部楼层 来自: 中国广东佛山
甜稀饭 发表于 2017-11-4 13:24
改装过程都雇人的话,也要几百吧

叫人搞的话,几百估计都不行,现在人工费这么高
回复 支持 1 反对 0

使用道具 举报

发表于 2017-11-4 13:24:47 来自手机 | 显示全部楼层 来自: 中国辽宁本溪
改装过程都雇人的话,也要几百吧
回复 支持 1 反对 0

使用道具 举报

发表于 2017-11-4 10:38:03 | 显示全部楼层 来自: 中国广东广州
厉害

点评

谢谢支持。  发表于 2017-11-4 13:36
回复 支持 反对

使用道具 举报

发表于 2017-11-4 10:59:04 | 显示全部楼层 来自: 中国浙江金华
大神,膜拜

点评

谢谢支持。不是大神。自己乱来的  发表于 2017-11-4 13:37
回复 支持 反对

使用道具 举报

发表于 2017-11-4 11:24:46 | 显示全部楼层 来自: 中国广东深圳
这手艺绝大部分人学不来…
回复 支持 反对

使用道具 举报

 楼主| 发表于 2017-11-4 13:34:51 | 显示全部楼层 来自: 中国广东佛山
ken89648280 发表于 2017-11-4 11:10
我都系顺德,链接泵与红色上水管那个白色软管在哪里买?用多大的

水族店就有,普通硅胶管咋。我既系32大
回复 支持 反对

使用道具 举报

 楼主| 发表于 2017-11-4 13:38:07 | 显示全部楼层 来自: 中国广东佛山
靓老虎 发表于 2017-11-4 11:24
这手艺绝大部分人学不来…

谢谢支持,主要了解结构其实就简单了
回复 支持 反对

使用道具 举报

 楼主| 发表于 2017-11-4 15:06:18 | 显示全部楼层 来自: 中国广东佛山
qifengran 发表于 2017-11-4 13:59
顶楼主,讲解的非常详细中肯!楼主人很好,我之前就咨询过楼主,楼主很有耐心的指导每一个细节,还提供了CA ...

谢谢支持。兄弟言重了,我其实也不懂,乱搞的。
回复 支持 反对

使用道具 举报

 楼主| 发表于 2017-11-5 00:05:23 | 显示全部楼层 来自: 中国广东佛山
jerryxie1982 发表于 2017-11-4 23:18
求楼主买的开门即亮的图片细节图,购买地址,使用评价。这个很适合用这个。楼主先见之明

在某宝搜LED感应灯带就好。床底照明那款
回复 支持 反对

使用道具 举报

 楼主| 发表于 2017-11-5 17:04:44 | 显示全部楼层 来自: 中国广东佛山
sure2891 发表于 2017-11-5 14:42
牛啊,我都想自己改,我看很多老外都是自己改背包的,或者亚克力溢流,但是国内肯自己动手的,还是少数。。 ...

谢谢支持。。。此文章只做参考哈,我自己也是乱来的。
回复 支持 反对

使用道具 举报

 楼主| 发表于 2017-11-13 15:18:10 | 显示全部楼层 来自: 中国广东佛山
顶一下。。
回复 支持 反对

使用道具 举报

发表于 2017-11-27 10:25:06 | 显示全部楼层 来自: 中国河北承德
请问亚克力板用什么胶水黏的玻璃上?谢谢。
回复 支持 反对

使用道具 举报

 楼主| 发表于 2017-11-28 14:56:50 | 显示全部楼层 来自: 中国广东佛山
xiesp 发表于 2017-11-27 10:25
请问亚克力板用什么胶水黏的玻璃上?谢谢。

普通玻璃胶即可,不过固定的时间较长。而且量也要多一点。
回复 支持 反对

使用道具 举报

发表于 2018-2-1 13:46:48 | 显示全部楼层 来自: 中国浙江
好贴,我也想把家里的草缸改了
回复 支持 反对

使用道具 举报

 楼主| 发表于 2018-2-1 15:13:50 | 显示全部楼层 来自: 中国广东佛山
shengsun 发表于 2018-2-1 13:46
好贴,我也想把家里的草缸改了

大家一起学习。。。
回复 支持 反对

使用道具 举报

发表于 2018-2-1 15:31:57 | 显示全部楼层 来自: 中国福建漳州
DIY高手
回复 支持 反对

使用道具 举报

您需要登录后才可以回帖 登录 | 注册

本版积分规则

QQ|手机版|小黑屋|Archiver|CMF海水观赏鱼网 ( 琼ICP备12003277号 )

GMT+8, 2026-3-12 16:46 , Processed in 0.084797 second(s), 30 queries .

Powered by Discuz! X3.4 Licensed

© 2001-2023 Discuz! Team.

快速回复 返回顶部 返回列表