CMF海水论坛

 找回密码
 注册
查看: 40167|回复: 13

宇杰的成长历程(P6页---未来5年的宇杰)

  [复制链接]
 楼主| 发表于 2014-5-14 12:04:57 | 显示全部楼层 来自: 中国上海

宇杰的成长历程(2025年8月25日我们又一次搬迁)

本帖最后由 niuniu 于 2025-11-27 07:38 编辑

1.jpg
回复 支持 1 反对 1

使用道具 举报

发表于 2014-12-27 10:25:29 | 显示全部楼层 来自: 中国广东深圳
顶起,太棒了!
回复 支持 2 反对 2

使用道具 举报

发表于 2014-10-6 07:54:17 | 显示全部楼层 来自: 中国天津
楼板可浇注成砼的吧,走上去基本无声,或者用水泥纤维板(专做钢结构楼板的也行,千万别用钢板)叮叮咚咚烦死人的!
回复 支持 3 反对 1

使用道具 举报

发表于 2014-5-28 20:48:55 | 显示全部楼层 来自: 中国广东深圳

阿哥,这个场地牛了,不过顶棚是彩钢板吗?如遇灾难天气会有坍塌危险啊。
回复 支持 2 反对 0

使用道具 举报

发表于 2014-7-8 01:19:14 | 显示全部楼层 来自: 中国台湾
感觉蛮用心的
回复 支持 1 反对 0

使用道具 举报

 楼主| 发表于 2014-8-21 00:31:50 | 显示全部楼层 来自: 中国上海
卵划划 发表于 2014-5-28 20:48
阿哥,这个场地牛了,不过顶棚是彩钢板吗?如遇灾难天气会有坍塌危险啊。

阿弟,侬不要吓我噢,哥哥胆子小,一家一当都在这了
回复 支持 反对

使用道具 举报

 楼主| 发表于 2014-8-21 00:33:24 | 显示全部楼层 来自: 中国上海

谢谢,谢谢!
回复 支持 反对

使用道具 举报

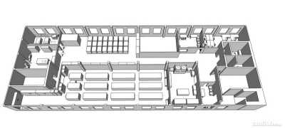
 楼主| 发表于 2014-8-21 00:35:58 | 显示全部楼层 来自: 中国上海
设计图

店面2.jpg

店面.jpg

店面2楼.jpg
回复 支持 反对

使用道具 举报

 楼主| 发表于 2014-8-21 00:37:18 | 显示全部楼层 来自: 中国上海
1.jpg
回复 支持 反对

使用道具 举报

 楼主| 发表于 2014-8-21 00:45:59 | 显示全部楼层 来自: 中国上海
记录过程

2014年3月31日
1.jpg

2.jpg

2014年4月20日
1.jpg

2014年4月28日
1.jpg

2.jpg

3.jpg

4.jpg

5.jpg
回复 支持 反对

使用道具 举报

 楼主| 发表于 2014-8-21 00:52:02 | 显示全部楼层 来自: 中国上海
2014年5月7日

1.jpg

2.jpg

2014年5月11日

1.jpg

2.jpg

3.jpg

2014年5月13日

1.jpg

2.jpg
回复 支持 反对

使用道具 举报

 楼主| 发表于 2014-8-21 01:00:04 | 显示全部楼层 来自: 中国上海
2014年5月16日为了今后可以承载二、三十个大胖子,我们选择了H型钢梁

1.jpg

2014年5月17日

1.jpg

2.jpg

3.jpg

2014年5月18日

1.jpg

2.jpg

3.jpg

4.jpg

5.jpg

6.jpg
回复 支持 反对

使用道具 举报

 楼主| 发表于 2014-8-21 01:09:25 | 显示全部楼层 来自: 中国上海
本帖最后由 niuniu(u-joy) 于 2014-8-21 01:13 编辑

2014年5月19日

1.jpg

2.jpg

3.jpg

4.jpg

2014年5月20日

1.jpg

2.jpg

3.jpg

4.jpg

2014年5月21日

1.jpg

2.jpg

3.jpg

4.jpg

5.jpg

6.jpg

回复 支持 反对

使用道具 举报

 楼主| 发表于 2020-2-5 07:50:38 | 显示全部楼层 来自: 美国

宇杰的成长历程(未来)

本帖最后由 niuniu 于 2020-2-5 07:52 编辑

很久没有上cmf了,看到这篇帖子前5页的内容都没了(历次店面照片),在上海,我们这一行在经营中遇到最多的事情就是“搬家”,可惜了每一次制作的展示缸,没法长久保持。
从2003年宇杰成立至今,十六年装修了6次。
希望这次可以长久一些。
1.JPG


2.JPG


3.JPG


4.JPG


5.JPG


6.JPG


7.JPG



回复 支持 反对

使用道具 举报

您需要登录后才可以回帖 登录 | 注册

本版积分规则

QQ|手机版|小黑屋|Archiver|CMF海水观赏鱼网 ( 琼ICP备12003277号 )

GMT+8, 2026-3-21 20:18 , Processed in 0.132663 second(s), 22 queries .

Powered by Discuz! X3.4 Licensed

© 2001-2023 Discuz! Team.

快速回复 返回顶部 返回列表